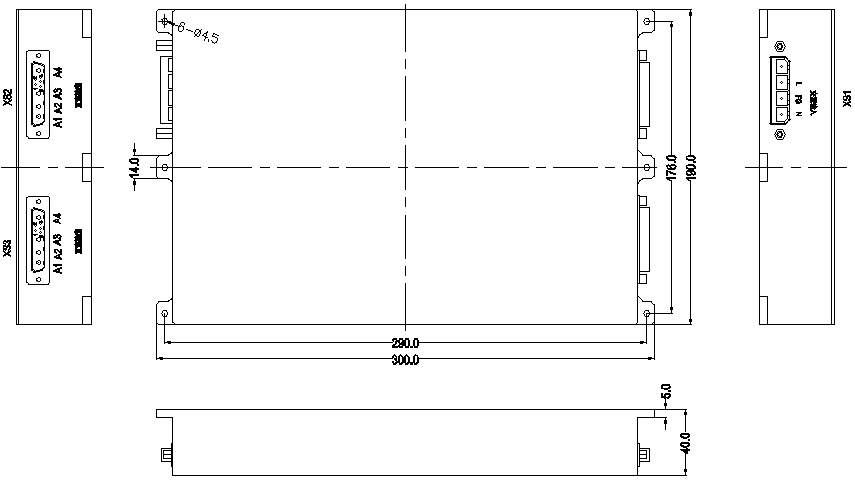
尺寸:300*190*40mm
输入电压范围:85-264Vac
输出电压可调
输入过/欠压保护,输出过流/短路/过压保护,过温保护

| 产品系列 | 封装尺寸 (mm) |
功率 (W) |
输入电压 | 输出电压 (Vdc) |
最大输出电流 (A) |
效率 (%) |
产品型号 | 规格书下载 |
|---|---|---|---|---|---|---|---|---|
| SD系列 | 300*190*40 | 3000 | 85-264Vac | 28 | 107.1 | 93 | SDVF3000-220S28-PG |